
วิธีดูแลบ่อดักไขมัน-พ่อบ้านมือใหม่ต้องอ่านก่อนทอน้ำจะอุดตัน
พ่อบ้านมือใหม่หลายท่านอาจจะไม่ทราบว่าซื้อบ้านมาแล้วต้องดูแลรักษากันอย่างไรบ้าง วันนี้จึงนำหนึ่งบทความมาฝากกัน คือ วิธีดูแลบ่อดักไขมัน ซึ่งเป็นระบบสุขาภิบาล บำบัดน้ำเสียก่อนระบายสู่น้ำสาธารณะ อีกด้วย
ทำไมต้องมีบ่อดักไขมัน ?
วัตถุประสงค์ของการมีบ่อดักไขมันนี้ก็สำหรับ ดักไขมันก่อนที่จะทิ้งน้ำลงสู่สาธารณะ ซึ่งถ้าเราไม่ผ่านการดักไขมันนี้ มีความผิดกฎหมายทำลายสิ่งแวดล้อม เพราะน้ำที่ระบายออกสู่สาธารณะจะเกิดอุดตัน จากเศษอาหาร วัสดุที่ตกค้างตามท่อ ไขมันที่ตกค้างส่งกลิ่นเน่าเหม็นนานวันก็จะเป็นเมือกไขหนาไปอุดตันตามท่อ เป็นแหล่งเพาะเชื้อโรค ส่งผลกระทบในวงกว้างกับสภาพแวดล้อม
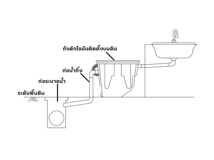
ถังดักไขมัน หรือ บ่อดักไขมันทำงานอย่างไร ?
บ่อดักไขมัน หรือ ถังดักไขมันจะวางกันท่อน้ำทิ้งในที่นี้จะเรียก ท่อน้ำเข้า ไหลเข้ามาสู่ตะแกรงดักเศษอาหาร ที่ทำหน้าที่กรองเศษอาหารที่ปนมากันน้ำทิ้ง จนเหลือแต่น้ำทิ้งและ เข้าสู่ส่วนที่สอง คือ ส่วนแยกไขมัน น้ำและไขมันจะถูกแยกออกจากันตามหลักธรรมชาติ ไขมันจะลอยตัวเหนือน้ำ น้ำที่แยกไขมันออกแล้วจะไหลลงสู่ท่อระบายน้ำสาธารณะต่อไป (ท่อนำที่แยกไขมันแล้วจะติดตั้งลึกกว่าระดับไขมันที่ลอยอยู่ด้านบน)

ระบบบ่อดักไขมัน
ส่วนประกอบของถังดักไขมัน
- 1. ตะแกรงดักเศษอาหาร ทำหน้าที่กรองเศษอาหารที่ปนมากับน้ำทิ้ง
- 2. ส่วนแยกไขมัน น้ำและไขมันจะถูกแยกออกจากกันตามหลักการธรรมชาติที่ไขมันจะลอยตัวอยู่เหนือน้ำ
- 3. ท่อระบายน้ำทิ้ง เป็นท่อระบายน้ำสำหรับน้ำที่แยกไขมันออกแล้วลงสู่ท่อระบายน้ำสาธารณะ ท่อนี้จะติดตั้งลงไปลึกกว่าระดับไขมันที่ลอยอยู่ด้านบน เมื่อมีการระบายน้ำจากอ่างล้างจาน น้ำที่ทิ้งมาใหม่จะผ่านกระบวนการแยกไขมัน และดันให้น้ำในถังเดิมไหลลงสู่ท่อระบายน้ำทิ้งสาธารณะ
- 4. ท่อระบายไขมัน ถังดักไขมันบางรุ่นจะมีท่อระบายไขมันติดตั้งอยู่สูงกว่าระดับน้ำทิ้ง เพื่อให้ไขมันที่ลอยอยู่ด้านบนไหลออกมา
บ่อดักไขมัน มีกี่แบบ ?
โดยทั่วไปแล้ว บ่อดักไขมัน หรือ ถังดักไขมันนั้นมีด้วยกันอยู่ 2 แบบ คือแบบตั้งอยู่บนดิน หรือ แบบถังดักไขมันลอยตัว ใช้วางใต้อ่างล้างจาน กรณีใช้สำหรับครัวเรือนที่มีปริมาณไขมันไม่มาก อีกแบบหนึ่งคือ แบบ ถังดักไขมันที่ฝังดิน ซึ่งระบบนี้โดยมากจะพบในรูปแบบบ้านจัดสรร บ้านในโครงการต่างๆ เพื่อความสวยงามดูเรียบร้อย หรือร้านอาหารที่มีพื้นที่จำกัด และวางโครงสร้างระบบสูขาภิบาลมาอย่างดี

รูป บ่อดักไขมันแบบฝังดิน

รูป บ่อดักไขมันแบบบนดิน
วิธีดูแลบ่อดักไขมัน
ในทุกๆเดือน ให้ทำการเปิดฝาบ่อเพื่อนำเศษอาหารที่มาจากน้ำทิ้งในตระแกรงดักเศษอาหารออก รวมถึงใช้กระชอนตักเอาคราบไขมันที่ลอยเหนือน้ำไปทิ้ง เพื่อป้องกันกลิ่นและการอุดตันเกิดขึ้น
ควรเติมจุลินทรีย์ทุกๆ 3 เดือน เพื่อป้องกันกลิ่นที่ไม่พึงประสงค์ด้วย

รูป-ไขมันอุดตัน-ใน-บ่อดักไขมัน-www.ผู้รับเหมา.net
สุดท้ายและท้ายสุดก็หวังเป็นอย่างยิ่งว่าบทความนี้จะเป็นประโยชน์ไม่มากก็น้อยกับ พ่อบ้านมือใหม่ หรือผู้ที่สนใจในการดูแลบ้านกันนะครับแล้วพบกันใหม่ครับ ^^
เครดิตรูปภาพและข้อมูลบางส่วนจาก บ้านและสวน